Accéder au contenu principal

Coprolo Poussy (1992-1994)

Raison sociale: Société Coopérative d'Habitation Coprolo Poussy
Statut: HLM en droit de superficie
Adresses: 6 - 8 - 14 - 16 - 22 - 24 - 26, chemin des Myosotis, 1214 Vernier
22 - 24 - 26 -28, chemin de Poussy, 1214 Vernier
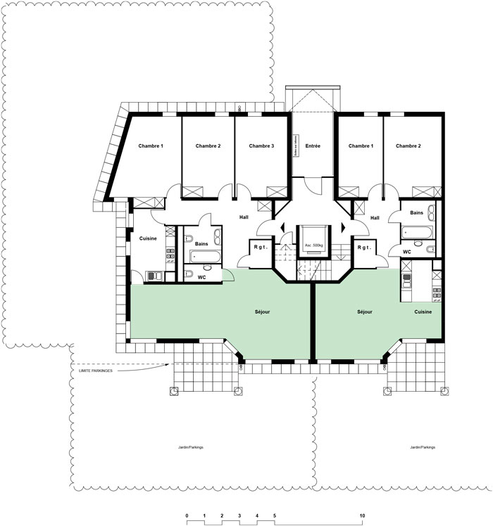
Nombre d'appartements: 103 appartements.
(4 x 6 pièces, 32 x 5 pièces, 40 x 4 pièces, 10 x 3 pièces, 17 x 2 pièces).
Parking: souterrain de 116 places et 16 box.
Date de construction: 1992–1994
Architecte: Jean-Pierre Ador & Gérard Kupfer pour le projet
Entreprise générale: MOZA (MOBAG & Zschokke) pour l’exécution
Mise en location: Fin 1993 et 1994
Situation: Le groupe de Poussy constitue un nouveau quartier d’habitations situé dans un environnement relativement calme. Il dispose d’espaces de jeux pour les enfants et les appartements du rez-de-chaussée bénéficie d’un jardin de plain-pied. Un garage souterrain offre un nombre de places de parking largement compté.
Caractéristiques: Une moitié environ du complexe appartient à une Fondation communale et un immeuble à une PPE. Un groupe scolaire est implanté dans le périmètre.

Quelques images