Accéder au contenu principal

Coprolo Cressy (2005)

Raison sociale: Société coopérative d'habitation COPROLO CRESSY
Statut: HM en droit de superficie
Adresses: 1 à 11, rue Louis-Frédéric Eckert et 61 à 71, rue Edouard-Vallet, 1232 Confignon
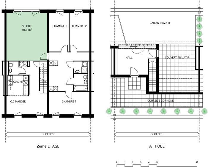
Nombre d'appartements: 48 logements et 2 surfaces commerciales.
(6 x 6 pièces, 24 x 5 pièces, 14 x 4 pièces, 2 x 3 pièces, 2 x 2 pièces).
Parking: souterrain de 44 places et 10 box.
Typologie originale des appartements conçus en duplex ou triplex.
Chaque logement bénéficie ainsi d’un espace végétalisé extérieur (jardinet ou toiture-terrasse) à usage privatif. Plusieurs espaces en rapport avec le système distributif (esplanades, couloirs et terrasses) sont à usage semi-privatif.
Date de construction: 2004-2005
Architecte: BARU SA - Mauro Riva
Mise en location: Janvier 2006
Situation: Dans le quartier récemment construit de Cressy. Zone d’habitation en périphérie urbaine, environnement calme. Ecole primaire dans le voisinage immédiat.
Caractéristiques: La qualité de l’habitat s’exprime par la recherche d’espaces diversifiés. Le jardin ou le jardin suspendu délimitent des espaces à caractère semi-privatif, de même que les couloirs et cages d’escaliers qui assurent la distribution des logements.
La diversité des types de logements constitue une autre particularité de ces immeubles. Conçus sur un seul niveau ou encore en triplex, ils offrent une variété de types d’habitat qui convient aussi bien aux familles qu’aux couples sans enfants.

Quelques images